スクリュー2つ使うことで



![]() |
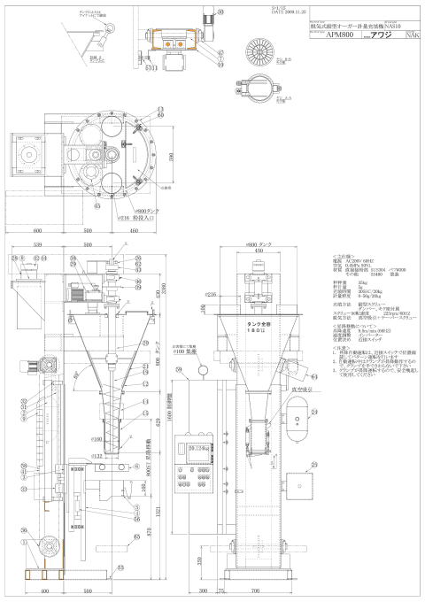
動作順序@ハカリをさげて容器をセットA充填口を容器底まで上昇させる B充填開始 脱気も同時に行う C充填とともに粉が充填口に触れないように容器を徐々に下降させる D充填完了 フレコンバックにも適用可能 |
| 秤量 | 1kg、5kg、30kg |
| 袋形態 | オープン袋 |
| 計量精度 | 最良 10g/20kg |
| オプション | ●プリンタ ●キク座&ダンパー ●袋クランプ昇降機 ●チェッカー(充填機との連動印字可能) ●粉体供給用コンベア ●製品搬送コンベア ●粉の圧入機能 |


スクリューコンベアと充填機を作っています垂直搬送スクリューコンベアで粉を垂直搬送TEL 06-6437-5442
FAX 06-6437-1844
nak@awaji-pack.com
株式会社アワジ
〒661-0026
兵庫県
尼崎市水堂町4丁目2-19
![]()
![]()
![]()
![]()
![]()
![]()
【製品一覧】
スクリューコンベア
垂直搬送コンベア
袋クランプ
ピンチバルブ
扇形ゲート
フレコンバック充填機
フレコンバック連続充填機
外(内)弁袋用計量充填機
水平スクリュー計量充填機
縦型スクリュー計量充填機
縦型スクリュー脱気計量充填機
多種粉体配合機
脱気コンベア
全自動計量充填包装機
連続定量供給機
リボンミキサー
パソコンで制御
取扱実績粉
技術資料
【見積依頼書】
スクリューコンベア
袋クランプ
計量充填機
フレコンバック充填機
フレコンバック連続充填機
リボン羽根型混合機
制御盤